Learn more about this property online at:
https://sandbox-cmsimport.colliers.com/p-rus27004755
https://sandbox-cmsimport.colliers.com/p-rus27004755
- For lease
For Lease
₽27,000 RUB
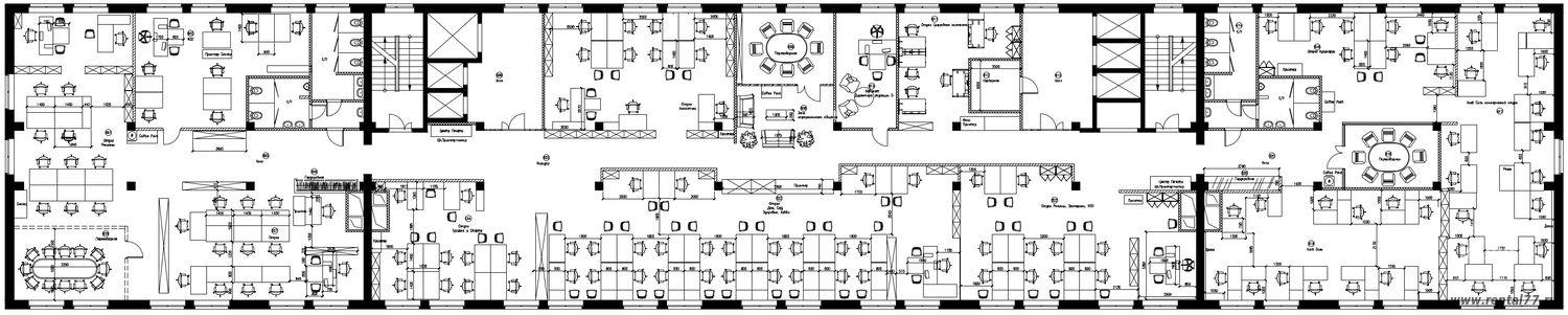
Office center located close to metro stations Polezhaevskaya, Khoroshovo. All premises are fitted-out and ready to move on.
Learn more about this property listing by contacting one of our experts.